欢迎来到taptap点点官方网(股票代码:831999)官方网站!

企业邮箱| 联系我们| 网站地图

服务热线: 4000-588-578
您现在所在的位置:首页 > 新闻资讯 > 节能技术答疑

煤改电业务

发布日期:2016-06-16 11:29:00 浏览:-| 加入收藏

煤改电简介

“煤改电”,顾名思义,是将燃煤锅炉改成用电的锅炉,常应用于居民供暖,从而替代传统的煤炭能源,减少污染。

用电供暖的设备包括电锅炉、空气源热泵和水源热泵,以及几种方式的组合。

电采暖集快捷、便利、清洁、安全、等点于一身,是城市居民用能方式的一种有效途径,从而提居民生活量。

煤改电的优点:

1、可以进一步调整化城乡供热能源结构,有益于整体节能。

2、可以减少燃煤锅炉污染,减少雾霾的生成几率。

3、可以缓解电力过剩,支持清洁发展

4、专为有峰—谷电价政策的地区设计,以型材料为载体,夜间通电加热的同时,储存热量,在白天电加热器断电的状态下释放热能,在达到采暖目的的同时,节省用电。

煤改电方式

1、电锅炉替代燃煤锅炉

电锅炉也称电加热锅炉、电热锅炉,它是以电力为能源并将其转化成为热能,从而经过锅炉转换,向外输出有一定热能的蒸汽、温水或有机热载体的锅炉设备。通常要结合储能设施使用,在电价谷时用电制热并储存起来,待白天电价峰值时释放出来使用。会降供暖成本。

适用于电价便宜,冬季较冷的地区使用。

电锅炉替代燃煤锅炉

2、空气源热泵替代燃煤锅炉

A.空气能(源)热泵是由电动机驱动的,利用空气中的热量作为温热源,经过传统空调器中的冷凝器或蒸发器进行热交换,然通过循环系统,提取或释放热能。

B.空气能(源)热泵使用1份电能,同时从室外空气中获取2份以上免费的空气能(源),能生产3份以上的热能,环保,相比电采暖每月节省75%的电费,为用户省下如此可观的电费

C.适用于冬季温度不于零下5度的地区供暖、提供生活用水。

空气源热泵替代燃煤锅炉

3、水源热泵代替燃煤锅炉

水源热泵是利用地球水所储藏的太阳能资源作为冷、热源,进行转换的空调。

它以地表水为冷热源,向其放出热量或吸收热量,不消耗水资源,不会对其造成污染;省去了锅炉房及附属煤场、储油房、冷却塔等设施,机房面积小于常规空调系统,节省建筑空间,也有利于建筑的美观。适用于周边有量水源供利用的沿海地区。

水源热泵代替燃煤锅炉

水源热泵代替燃煤锅炉

4、热泵和电锅炉相结合的方式

该组合适用于以热泵主为,以电锅炉为辅。常规情况下,热泵的能效比电锅炉,但当环境温度过导致热泵效率过时,启动电锅炉辅助。

工程案例1

湖北某学空气源热泵供热水

一、工程简介

以湖北某学校2栋6层学生宿舍,该宿舍为建,该宿舍每层约入住有320人,每层设有两个公共浴室,热泵在楼顶加热冷水,储存在保温水箱,热水经管道进入每层浴室,以供使用。

二、工艺选择


工程案例1

空气源热泵机组:由8台空气源热泵并联向系统提供热源,每台空气源热泵机组可独立开启或关闭并有独立的进水和出水控制阀门,便于机组的维护和管理。空气源热泵设备有自动和手动两种控制方式,同时设有切换开关,当切换开关置于“手动”位置时,只能用人工手动启停热泵设备。当切换开关置于“自动”位置时,热泵由温控仪自动控制启停,当水箱水温达到设定温度时,停止给热泵设备供电,反之则保持供电。


三、经济性分析

序号

项目

参数

1

能效比

4

2

每吨水需电量(度)

11.63

3

电费单价(元/度)

0.595

4

日设计量(t)

76.8

5

运行天娄

293

6

日用水量系数

0.6

7

单位水费(元/吨)

2.32

全年电费为:76.8×0.6×293×11.63×0.595=9.3428万元

全年水费为:76.8×0.6×293×2.32=3.13万元

平均全年管理费用为:76.8×0.6×293×5=6.75万元

注:单位管理费5元/吨。

全年维修费(含不可预见费)为8.00万元。

综上可知,全年运行总费用为:9.3428+3.13+6.75+8.00=27.228万元

四、小结

与其他集中热水供应系统相比,空气源热泵系统结构紧凑,工程量少,占地面积小,安装简便,不需设专用机房。智能化管理,可实现全机系统自动化运行,不需专人值守,降了项目工程及管理费用。

工程案例2

某金融中心冬季空调供暖设计计算热负荷峰值为5044kW:1~6层(裙房)973kW,8~20层(区)1331kW,22~34层(中区)1331kW,36~46层(区)1409kW。

考虑到当时的市政能源条件(无集中供热与燃气源,电力充足、供电政策支持和电价惠)和初投资与运行费用的效益比以及机房安全条件。

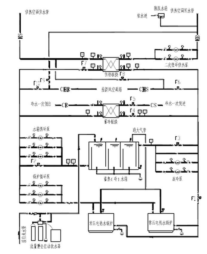
本工程采用常压型电热水锅炉生产的蓄热水作为空调供暖热源,采用常温全量(不考虑不可预见系数)蓄热模式、并联流程,并根据楼层分布情况分设4套系统,机房分别布置于7层,21层,35层,PH1设备层。每套系统均设有2台675kW的电锅炉、1个有效容积为200m3的蓄热水箱,其设计蓄热水温为45~90℃,蓄热量为10465kWh;考虑10%的余量,联合供热(板式换热器的)总供热能力为1600kW;板式换热器一次侧的设计进、出水温度为55℃/45℃、二次侧(空调末端设备)的设计供、回水温度为50℃/40℃。该水蓄热系统夏季可兼作蓄冷用,其蓄热水箱转变为蓄冷水箱,主要用于风空调箱的供冷。


工艺流程

工程案例2 


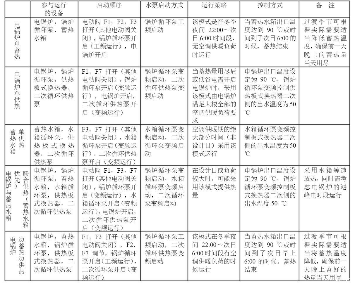
系统运行模式控制表

系统运行模式控制表

该系统运行较为灵活,可以根据不同的需求情况采用不同的供暖方式,同时电锅炉更为清洁环保。

  想要了解更多相关点点官网taptapapp下载信息请点击网站右侧客服咨询或者致电24小时服务热线:400电话.png,点点官网taptapapp下载竭诚为您服务!

京公网安备 11011302005300号

Baidu
ios在taptap怎么下载